※商談中※【リフォーム済み4LDKタイプ】イトーピア香櫨園酒蔵通り ※室内画像あり
【 中古マンション 】【4,898万円から価格変更しました】~阪神香櫨園駅徒歩10分圏内のマンションでリフォーム済みの4LDKをご希望のお客様におすすめ~浜脇保育園徒歩7分、浜脇小学校徒歩4分、浜脇中学校徒歩4分、サンディ香櫨園店徒歩3分、万代西宮前浜店徒歩7分、セブンイレブン西宮香櫨園店徒歩7分の立地です。
| 最寄駅 | 所在地 | 面積 | 築年月 | 価格 | 間取り |
|---|---|---|---|---|---|
阪神本線香櫨園駅 徒歩 9分 | 尼崎市建石町 | 専有面積/88.06㎡ | 2001年10月 | 4,780 万円 | 4 LDK |
【イトーピア香櫨園酒蔵通り】
★浜脇小/浜脇中学校区
★阪神香櫨園駅徒歩9分/阪神西宮駅徒歩12分/JRさくら夙川駅徒歩15分
★専有面積88.06㎡
★バルコニー面積16.53㎡
★専用庭面積33.01㎡ ※テラス面積含む
★2001年10月建築
★11階建1階部分
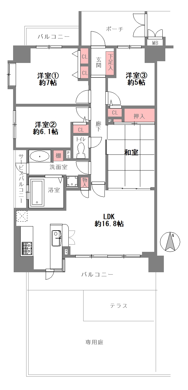
★4LDK
★三方(南・西・北)角部屋
★駐車場使用権付き ※月額使用料13,000円
★室内リフォーム済(システムキッチン、ユニットバス、洗面化粧台、トイレ新調/フローリング張替/クロス貼替など)
★お支払い例:月々115,956円(頭金0円/借入金4,780万円/ボーナス払い0円/期間40年/金利0.78%)※条件により異なります
物件写真・間取り
物件概要
| 物件名 | ※商談中※【リフォーム済み4LDKタイプ】イトーピア香櫨園酒蔵通り ※室内画像あり |
|---|
| 交通機関 | 阪神本線香櫨園駅 徒歩 9分 阪神本線西宮駅 徒歩 12分 JR東海道本線さくら夙川駅 徒歩 15分 |
|---|
| 所在地 | 尼崎市建石町 |
|---|
| 価格 | 4,780 万円 |
|---|
| 間取り | 4 LDK |
|---|
| 間取り詳細 | 洋7帖/洋6.1帖/洋5帖/和6帖/LDK16.8帖 |
|---|
| 土地権利 | 所有権 |
|---|
| 専有面積 | 88.06㎡ |
|---|
| 建物構造 | RC |
|---|
| 階 / 階数 | 11階建1階部分 |
|---|
| 築年月 | 2001年10月 |
|---|
| 都市計画 | 市街化区域 |
|---|
| 用途地域 | 第一種住居地域 |
|---|
| 駐車場 | 有 月額使用料13,000円 |
|---|
| 現況 | 空 |
|---|
| 管理費 | 13210円 |
|---|
| 修繕積立金 | 17610円 |
|---|
| 引渡し | 即時 |
|---|
| 備考 | ■日本宅建株式会社だからこそできるサービスがございますのでお気軽にご相談ください ■当社では、しつこい電話営業は行なわず【メールやLINEでの接客】を推奨しています ■当社では【〇〇手数料】等と謳って【仲介手数料以外】の費用をご請求する事はありません ■ホームページ掲載物件以外でも、気になる物件がございましたらお気軽にご相談ください ■住宅ローンにつきましても、数多くの金融機関の中からお客様の属性にマッチした金融機関をご提案させていただきます ■物件のご案内について・・・ 当社では、お客様の時間の許す限り【朝・昼・夜・雨天時・平日・週末】などのご案内を心がけております。不動産にもそれぞれの場面で様々な表情があります。不動産は一生に1回~数回あるかどうかの大切なお買いものですので【物件の良い点だけでなく悪い点も】納得するまでゆっくりと時間をかけて私達と一緒に考えてみませんか |
|---|
| 取引態様 | 媒介 |
|---|



























