【完成済みの新築戸建】尼崎市武庫之荘5丁目新築戸建
【 新築戸建 】~阪急武庫之荘駅徒歩圏で完成済みの新築戸建をご希望のお客様におすすめ~武庫からたち幼稚園徒歩6分、武庫之荘保育園徒歩10分、武庫東小学校徒歩6分、武庫東中学校徒歩13分、マックスバリュ武庫元町店徒歩5分、サンディ武庫元町店徒歩8分の立地です。
| 最寄駅 | 面積 | 築年月 | 価格 | 間取り |
|---|---|---|---|---|
阪急神戸線武庫之荘駅 徒歩 20分 | 土地/82.37㎡ 建物/84.23㎡ | 2026年01月 | 4,980 万円 | 3 LDK |
【尼崎市武庫之荘5丁目新築戸建】
★武庫東小/武庫東中学校区
★阪急武庫之荘駅徒歩20分またはバス14分『武庫西生涯学習プラザ』停歩2分
★土地面積82.37㎡(約24.9坪)
★建物面積84.23㎡(約25.4坪)
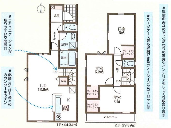
★3LDK
★全居室洋室 ※全洋室にウォークインクローゼットあり
★北向き ※南側バルコニー
★前面道路幅員約4m
★住宅性能評価取得物件/長期優良住宅認定物件
★お支払い例:月々132,378円(頭金0円/借入金4,980万円/期間35年/金利0.64%/ボーナス払い無し)※条件により異なります
物件写真・間取り
物件概要
| 物件名 | 【完成済みの新築戸建】尼崎市武庫之荘5丁目新築戸建 |
|---|
| 交通機関 | 阪急神戸線武庫之荘駅 徒歩 20分 阪急神戸線武庫之荘駅 バス 14分 『武庫西生涯学習プラザ』停歩2分 |
|---|
| 価格 | 4,980 万円 |
|---|
| 間取り | 3 LDK |
|---|
| 間取り詳細 | 洋6帖/洋6帖/洋5.2帖/LDK18.6帖 |
|---|
| 土地権利 | 所有権 |
|---|
| 土地面積 | 82.37㎡ |
|---|
| 建物面積 | 84.23㎡ |
|---|
| 建物構造 | 木造 |
|---|
| 階 / 階数 | 2階建 |
|---|
| 築年月 | 2026年01月 |
|---|
| 都市計画 | 市街化区域 |
|---|
| 用途地域 | 準住居地域 |
|---|
| 建ぺい率 | 60% |
|---|
| 容積率 | 200% |
|---|
| 駐車場 | 有 |
|---|
| 接道 |
|
|---|
| 地目 | 宅地 |
|---|
| 現況 | 完成済 |
|---|
| 引渡し | 相談 |
|---|
| 備考 | ■日本宅建株式会社だからこそできるサービスがございますのでお気軽にご相談ください ■当社では、しつこい電話営業は行なわず【メールやLINEでの接客】を推奨しています ■当社では【〇〇手数料】等と謳って【仲介手数料以外】の費用をご請求する事はありません ■ホームページ掲載物件以外でも、気になる物件がございましたらお気軽にご相談ください ■住宅ローンにつきましても、数多くの金融機関の中からお客様の属性にマッチした金融機関をご提案させていただきます ■物件のご案内について・・・ 当社では、お客様の時間の許す限り【朝・昼・夜・雨天時・平日・週末】などのご案内を心がけております。不動産にもそれぞれの場面で様々な表情があります。不動産は一生に1回~数回あるかどうかの大切なお買いものですので【物件の良い点だけでなく悪い点も】納得するまでゆっくりと時間をかけて私達と一緒に考えてみませんか |
|---|
| 取引態様 | 媒介 |
|---|








