売買物件

  • HOME
  • 売買物件
  • 【即引渡し可能】尼崎市西立花町5丁目新築戸建

【即引渡し可能】尼崎市西立花町5丁目新築戸建

【 新築戸建 】~JR立花駅徒歩10分圏内の2階建て新築戸建をご希望のお客様におすすめ~ウエルシア尼崎西立花店徒歩3分、ファミリーマート尼崎稲葉元町店徒歩4分、フレンドマート尼崎水堂店徒歩8分、関西スーパーフェスタ立花店徒歩9分、今北保育所徒歩7分、七松小学校徒歩17分の立地です。

最寄駅面積築年月価格間取り

JR東海道本線立花駅 徒歩 10分

土地/80.00㎡

建物/105.99㎡

2025年10月 4,580 万円 3 LDK

【尼崎市西立花町5丁目新築戸建】
★マリンホーム施工物件
★七松小/日新中学校区
★JR立花駅徒歩10分/阪急武庫之荘駅徒歩28分
★土地面積80.00㎡(約24.2坪)
★建物面積105.99㎡(約32.0坪)※車庫部分11.17㎡含む
★木造2階建
★3LDK
★北向き ※南側バルコニー
★前面道路幅員約5m
★充実の設備(IHコンロ/食洗機/浄水付きタッチレス水栓/魔法びん浴槽/ガス衣類乾燥機/宅配ボックスなど)
★長期優良住宅

★お支払い例:月々124,644円(頭金0円/借入金4,580万円/期間35年/金利0.78%/ボーナス払い無し)※条件により異なります

物件写真・間取り

外観
間取図

物件概要

物件名

【即引渡し可能】尼崎市西立花町5丁目新築戸建

交通機関

JR東海道本線立花駅 徒歩 10分

阪急神戸線武庫之荘駅 徒歩 28分

価格

4,580 万円

間取り 3 LDK
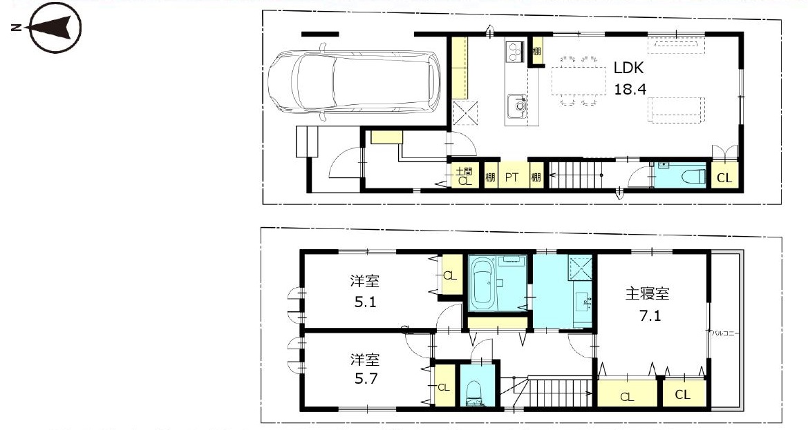
間取り詳細

洋7.1帖/洋5.7帖/洋5.1帖/LDK18.4帖

土地権利 所有権
土地面積

80.00㎡

私道負担面積 無し
建物面積

105.99㎡

建物構造 木造
階 / 階数

2階建

築年月

2025年10月

都市計画 市街化区域
用途地域 第一種住居地域
建ぺい率

60%

容積率

200%

駐車場
接道
一方
方向:北側 道路幅員:5m
地目 宅地
現況 完成済
引渡し 相談
備考■日本宅建株式会社だからこそできるサービスがございますのでお気軽にご相談ください

■当社では、しつこい電話営業は行なわず【メールやLINEでの接客】を推奨しています
■当社では【〇〇手数料】等と謳って【仲介手数料以外】の費用をご請求する事はありません
■ホームページ掲載物件以外でも、気になる物件がございましたらお気軽にご相談ください
■住宅ローンにつきましても、数多くの金融機関の中からお客様の属性にマッチした金融機関をご提案させていただきます

■物件のご案内について・・・
当社では、お客様の時間の許す限り【朝・昼・夜・雨天時・平日・週末】などのご案内を心がけております。不動産にもそれぞれの場面で様々な表情があります。不動産は一生に1回~数回あるかどうかの大切なお買いものですので【物件の良い点だけでなく悪い点も】納得するまでゆっくりと時間をかけて私達と一緒に考えてみませんか
取引態様 媒介

物件地図人型アイコンを地図上にドラッグするとストリートビューで表示されます。

【即引渡し可能】尼崎市西立花町5丁目新築戸建

地図を戻す

資料請求・お問い合わせ

物件名【即引渡し可能】尼崎市西立花町5丁目新築戸建
お問い合わせ内容
お名前
電話番号
メールアドレス
確認のため同じアドレスをご入力ください。
備考欄ご希望の連絡方法、見学希望日、希望条件、質問などがございましたら、ご記入ください
  • サイトマップ
  • お問い合わせ
  • スタッフ紹介
  • お客様の声
  • アクセスマップ
会社案内

日本宅建株式会社

兵庫県尼崎市立花町三丁目35番12号

TEL 06-7508-2744

FAX 06-7509-6397

営業時間 10:00~18:00
定休日 水曜日・日曜日・祝祭日

宅建免許番号:兵庫県知事 (3) 第204113号

当社は売買仲介、賃貸仲介のほかリノベーション・リフォーム工事のご提案などを中心に、不動産全般のご相談を承っております。

新聞折込広告や投函チラシ、スーモなどのネット広告で気になる物件がありましたら、まずは当社までお問い合わせください。市場で売り出し中の物件については、そのほとんどが当社でも取扱いが可能です。もちろんサービスの質でも絶対に損はさせません!売買物件でのお取引にあたり「ローン代行手数料」「〇〇手数料」等と謳って「仲介手数料以外」の費用をご請求する事はありません!また賃貸物件でのお取引にあたりましても「〇〇サポートサービス」「抗菌消毒費用」等を売り込むような事はありませんのでご安心ください(不本意ですが、貸主又は管理会社からの指定の商品についてはこの限りではありません・・・)。

Copyright (C)2019日本宅建株式会社 All Rights Reserved.